18-ти этажный бизнес центр "Палладиум", класса "А".
Здание занимает юго-восточный угол квартала и архитектурно-планировочно связано с
жилой частью "Палладиума". Бизнес-центр был открыт в 2008г.
Такая была застройка на месте "Палладиума".
Угловой дом 3-х этажный дом с адресом Хохрякова, 14 / Попова, 12.
2-х этажный полукаменный дом с адресом Хохрякова, 12.
Интересно, что было на третьем этаже, который явно был надстроен позже.
Фото июль 2002 г.
Первый вариант "Палладиума".
Первоначально башня проектировалась как гостиница.
Второй вариант решения фасадов Палладиума.
Ночной вид второго варианта "Палладиума".
Окончательный, доработанный вариант "Палладиума".
Рендер от студии Наутилус.
Макет "Палладиума".на основе второго варианта.
Изготовитель макета
"Макетное бюро №1".
Макет с подсветкой.
И с планировкой.
Стройка по состоянию на сентябрь 2006г.
Стройка по состоянию на декабрь 2006г.
На переднем плане
установлены леса для заливки перекрытия
над въездами в подземный паркинг
и во двор жилого дома.
А ровно за месяц до этого, 24 ноября, через два часа после заливки, это перекрытие рухнуло.
Фото 24 ноября на рухнувшее перекрытие из Корин-центра.
Фото
с сайта е1.ru
Стройка по состоянию на июль 2007г.
Октябрь 2007г.
Утепление общественной части. Декабрь 2007г.
Фото январь 2008г.
Фото апрель 2008г.
Фото август 2008г.
Современное состояние.
Фото с перекрёстка ул.Хохрякова - Попова.
Вид со стороны ул.Попова. Слева въезд в подземную автостоянку.
Вид с проспекта Ленина.
Вид с дворового пространства жилого комплекса "Палладиум".
Фрагмент дворового фасада.
В этом 2-х этажном блоке расположен фитнес-центр (в подвале).
На 1-2 этаже ресторан «IL Патио» и «1-2-3 кафе».
Горизонтальное остекление в уровне цоколя освещает фитнес-центр в подвале.
Входная группа в бизнес-центр.
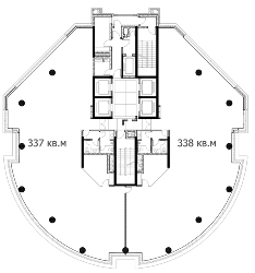
Планы этажей:
План 3-го этажа.
План 5-го этажа.
План 12-го этажа.
ноябрь 2010
- made in yekaterinburg - 2003 - 2010 -
Связь с администратором сайта admin@1723.ru